Mounting
RideAmp-250Q is designed to be flush-mounted to a flat surface, making it ideal for ride vehicle panels.
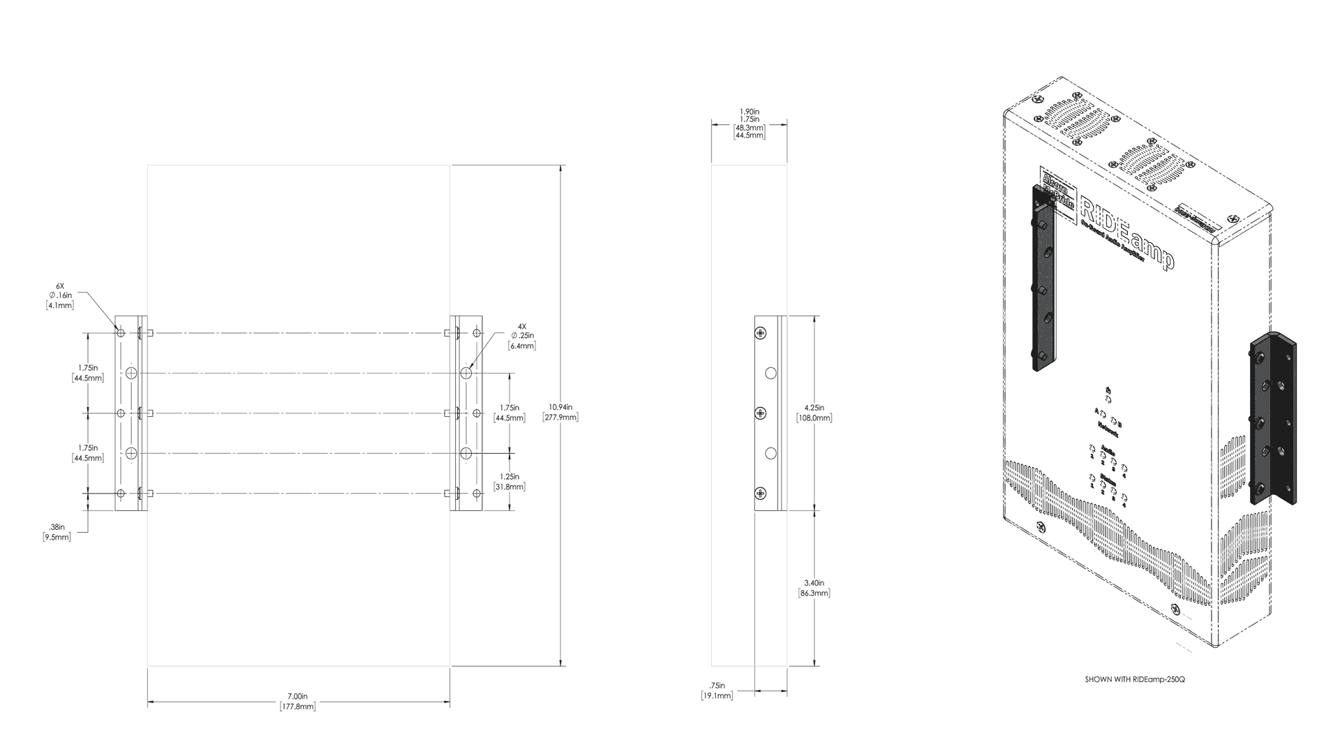
SMK - Single Unit Surface Mount Kit (Included)
For most use cases, our standard SMK surface mount kit is a great solution so it is included in the box with every RideAmp-250Q unit. This is a very simple set of angled brackets that hard-mount the RideAmp-250Q flush against a flat surface.

Drawings and models can be obtained from our website here:
VSMKX-1 - Single Unit Surface Mount Kit /w Vibration Dampening
For added protection, the VSMKX-1 mounting kit offers vibration dampening grommets that rest between the surface mounting angle brackets and the fasteners mounting the unit.

Drawings and models can be obtained from our website here:
VSMKX-2 - Dual Unit Surface Mount Kit /w Vibration Dampening
Since space is one of the most precious resources with on-board applications, we offer the VSMKX-2 kit to allow two of our onboard products (RidePlayerX, RideAmp-25H, and RideAmp-250Q) to be mounted in a stacked configuration. This kit also includes vibration dampening grommets for added protection.

Drawings and models can be obtained from our website here:
Heat Dissipation
The RideAmp-250Q uses active cooling with top mounted intake vents and side exhaust vents. During installation the top, bottom, and sides of the amplifier should maintain a minimum spacing of 1” [25mm] to enclosure walls and 1.5” [38mm] to other amplifiers or other heat generating components. The rear surface of the amplifier may directly contact the enclosure, and the front mounting surface should maintain a minimum of 0.25” [6.4mm] from the enclosure walls or any other components. If Alcorn McBride mounts (SMK-1, VSMKX-1, & VSMKX-2) are used for installation, no additional space will be required.
As noted, the fan intake is located at the top of the unit to push air through the amplifier. If at all possible align the airflow from vents or other cooling systems with the airflow of the RideAmp-250Q. The unit may be mounted in any orientation as required to optimize thermal management and cable placement.